Page suivante
Page précédente
Villeurbanne (69100)

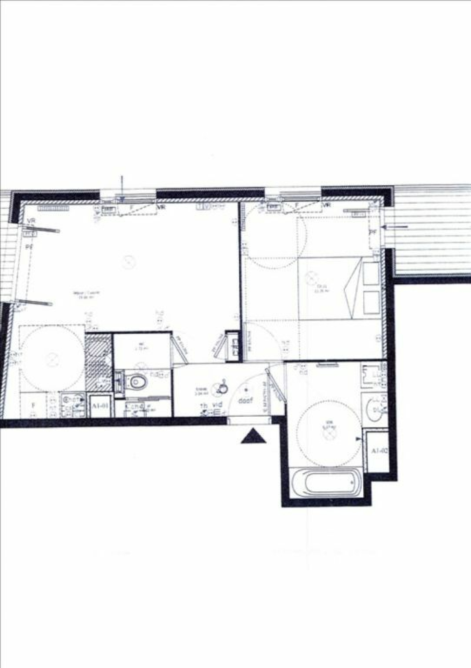
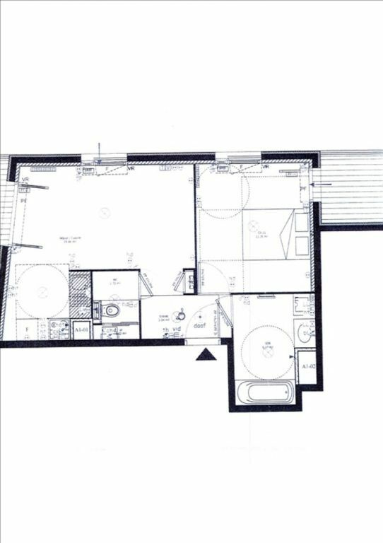
Appartement 2 pièce(s) 1 chambre(s) 42.5 m²

1
Ascenseur
1
737,29 € CC*
Réf 1SADOYAN

Rue Isabelle Sadoyan, beau T2 de 42,5m² comprenant une entrée, un séjour avec une cuisine ouverte équipée donnant accès à une terrasse de 7,16m², une chambre, une salle de bains ,des toilettes. L'appartement dispose d'une place de parking en sous-sol. Dispositif PINEL.

Honoraires 425€ + 127€ Frais d'états des lieux / Zone soumise à l'encadrement des loyers / Loyer de référence médian : 616€ HC / Loyer majoré : 739€ HC / Complément de loyer : 0€ HC

La prise de rendez-vous s'effectue en ligne, merci de vous rediriger sur notre site IBT GESTION et de cliquer sur la rubrique "prendre rendez-vous", celle-ci se situe au niveau du descriptif de l'annonce. Il vous suffira de réserver votre créneau de visite ou de remplir le formulaire afin d'être placé sur la liste d'attente en attendant de recevoir une invitation. Les garants physiques couvrants 3X le montant du loyer sont obligatoires pour pouvoir visiter le logement.

Nous ne prenons pas de dossier de candidature sans visite.

Vous pouvez également nous contacter sur notre standard téléphnique pour plus d'informations.

.

Bilan énergétique

Diagnostics énergetiques
A propos de ce bien Caractéristiques de ce bien
  • Surface 42,50 m²
  • 1 chambre(s)
  • 1 salle(s) de bain
  • Chauffage individuel : radiateur (gaz)
  • 1er étage
  • ascenseur
  • interphone
  • accès handicapé

Info copro

Copropriété
  • Copropriété Oui

Financier

Informations financières
Loyer CC* / mois 737,29 €
Prix net vendeur 627 €
Honoraires TTC charge locataire 552 €
Dont état des lieux 127 €
Dépôt de garantie TTC 683,19 €
Charges locatives (Previsionnelles mensuelles avec regularisation annuelle) 54 €

Autour du bien

Découvrez le quartier
IBT GESTION Agence

* CC : Charges comprises