Page suivante
Page précédente
Reignier-Ésery (74930)

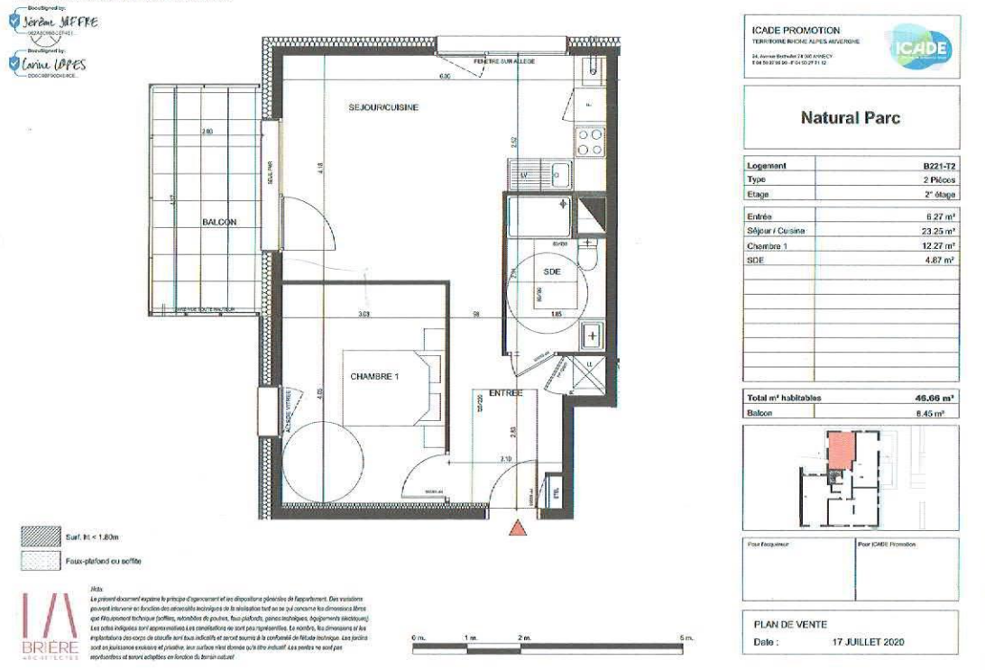
Appartement 2 pièce(s) 1 chambre(s) 46.66 m²

1
Balcon
800 € CC*
Réf garereignier

Situé rue de la gare, dans une résidence neuve, beau T2 de 46.66m² situé au 2ème étage. Il se compose d'une entrée, ouvrant sur le séjour et la cuisine ouverte équipée, qui donne accès à un balcon de 8.45m², un coin nuit avec 1 chambre, une salle d'eau avec wc. Le bien dispose d'un parking exterieur, d'un parking en sous sol

Honoraires: 466€ + 139€ Frais d'état des lieux .

La prise de rendez-vous s'effectue en ligne, merci de vous rediriger sur notre site IBT GESTION et de cliquer sur la rubrique "prendre rendez-vous", celle-ci se situe au niveau du descriptif de l'annonce . Il vous suffira de réserver votre créneau de visite ou de remplir le formulaire afin d'être placé sur la liste d'attente en attendant de recevoir une invitation. Les garants physiques couvrants 3X le montant du loyer sont obligatoires pour pouvoir visiter le logement.

Nous ne prenons pas de dossier de candidature sans visite.

Vous pouvez également nous contacter sur notre standard téléphonique pour plus d'informations.

Bilan énergétique

Diagnostics énergetiques
A propos de ce bien Caractéristiques de ce bien
  • Surface 46,66 m²
  • 1 chambre(s)
  • 1 salle(s) d'eau
  • cuisine américaine (équipée)
  • Chauffage individuel : autre (electrique)
  • 2ème étage
  • balcon

Financier

Informations financières
Loyer CC* / mois 800 €
Honoraires TTC charge locataire 605 €
Dont état des lieux 139 €
Dépôt de garantie TTC 750 €
Charges locatives (Previsionnelles mensuelles les avec regularisation annuelle) 50 €

Autour du bien

Découvrez le quartier
IBT GESTION Agence

* CC : Charges comprises