Page suivante
Page précédente
Thonon-les-Bains (74200)

Appartement 2 pièce(s) 1 chambre(s) 46.62 m²

1
2
740 € CC*
Réf 13MORCY

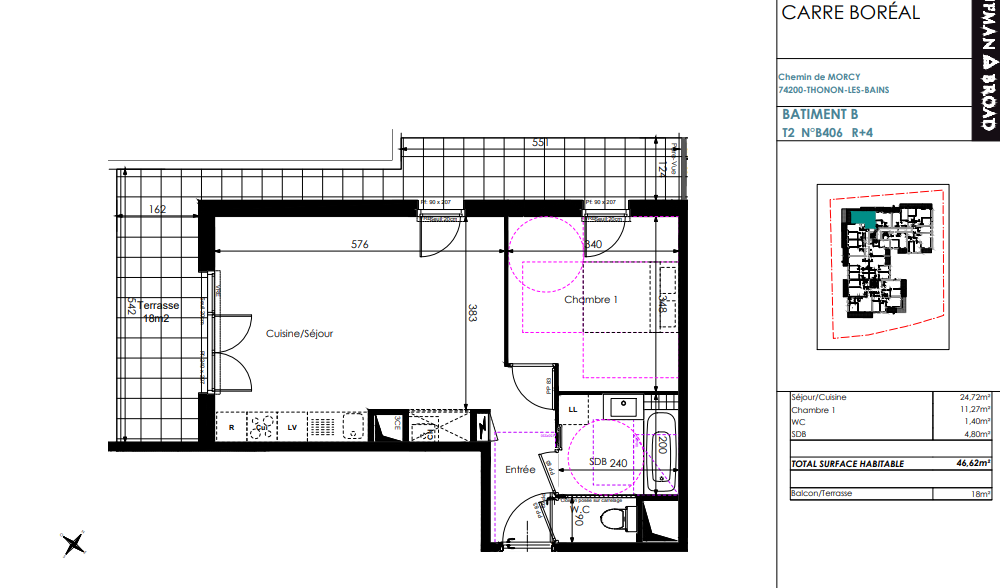
Chemin de Morcy, beau T2 de 46.62m² situé au 4ème étage. L’appartement dispose d’une cuisine équipée ouverte sur le séjour, donnant accès à une terrasse de 18m². Le coin nuit comprend une chambre ouvrant sur la terrasse, une salle de bains ainsi que des toilettes séparées. Le bien dispose de deux garages en sous-sol. 

Honoraires: 466€+ 93€ Frais d'état des lieux.

Ce bien étant disponible sur plan uniquement, aucune visite ne sera prévue. Merci de vous rediriger sur notre site IBT GESTION et de cliquer sur la rubrique "Je dépose ma candidature en ligne après ma visite", celle-ci se situe au niveau du descriptif de l'annonceIl est important d'ajouter une date de visite fictive et d'indiquer que vous avez contacté l'agence. Les garants physiques sont obligatoires pour obtenir le logement.

Vous pouvez également nous contacter sur notre standard téléphnique pour plus d'informations.

Bilan énergétique

Diagnostics énergetiques
A propos de ce bien Caractéristiques de ce bien
  • Surface 46,62 m²
  • 1 chambre(s)
  • 1 salle(s) de bain
  • cuisine américaine (équipée)
  • Chauffage individuel : autre (gaz)
  • 2 garage(s)
  • 4ème étage
  • terrasse

Financier

Informations financières
Loyer CC* / mois 740 €
Honoraires TTC charge locataire 559 €
Dont état des lieux 93 €
Dépôt de garantie TTC 690 €
Charges locatives (Previsionnelles mensuelles les avec regularisation annuelle) 50 €

Autour du bien

Découvrez le quartier
IBT GESTION Agence

* CC : Charges comprises