Page suivante
Page précédente
Saint-Didier-au-Mont-d'Or (69370)

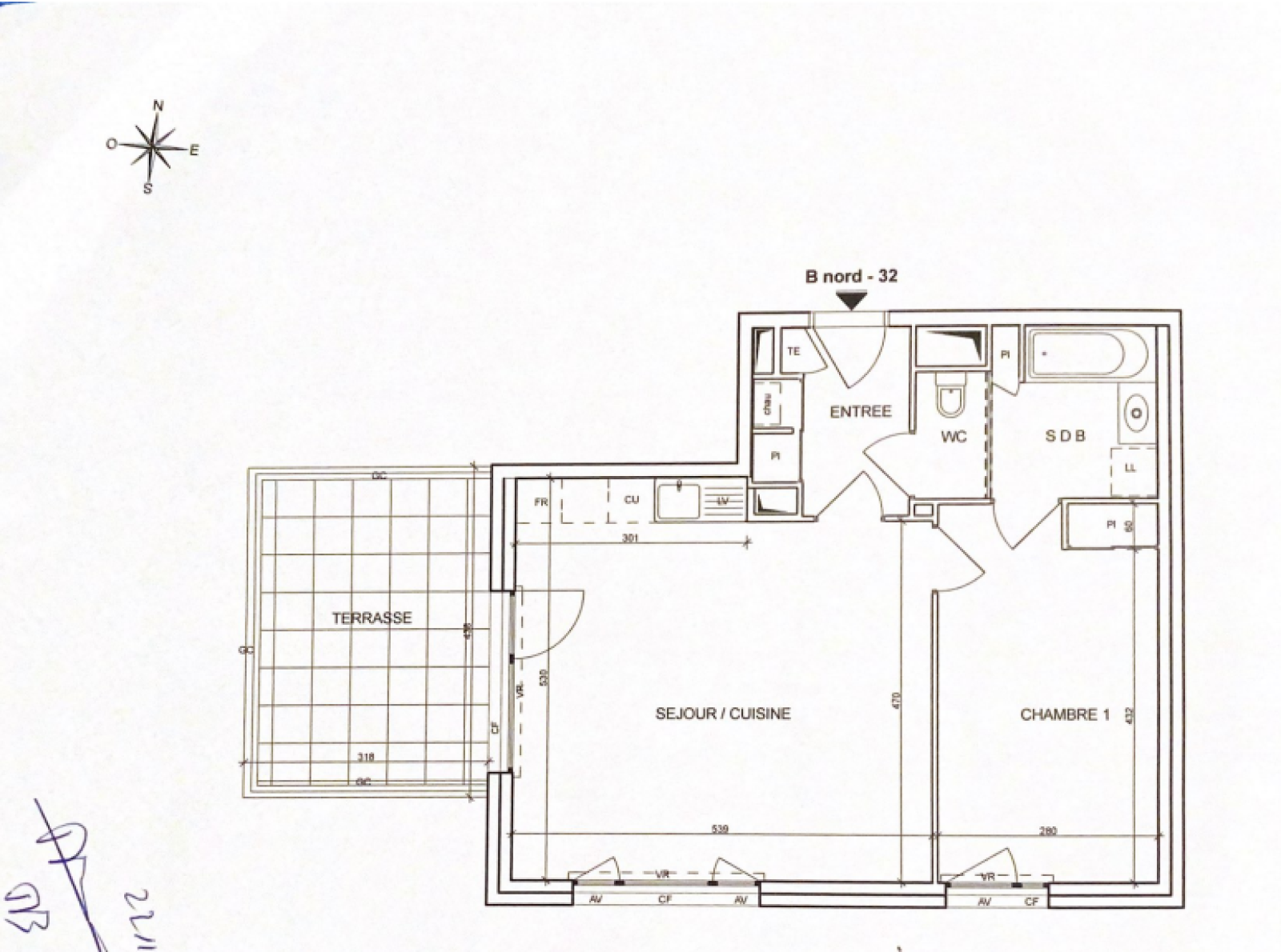
Appartement 2 pièce(s) 1 chambre(s) 51.39 m²

1
Balcon
1
717,55 € CC*
Réf didiert2

Centre de Saint Didier, au sein d’une résidence récent de standing, beau T2 de 51.39m² au 2ème étage comprenant une belle pièce de vie avec une cuisine équipée ouvrant sur une grande terrasse dans vis-à-vis. Une chambre avec un accès à une salle de bains, un wc. Calme et très lumineux, ce logement dispose d’une place de parking privative en sous-sol. Il est également climatisé.

Honoraires: 513€ + Frais d'état des lieux: 154€. Plafond Pinel.

La prise de rendez-vous s'effectue en ligne, merci de vous rediriger sur notre site IBT GESTION et de cliquer sur la rubrique "prendre rendez-vous", celle-ci se situe au niveau du descriptif de l'annonce . Il vous suffira de réserver votre créneau de visite ou de remplir le formulaire afin d'être placé sur la liste d'attente en attendant de recevoir une invitation. Les garants physiques couvrants 3X le montant du loyer sont obligatoires pour pouvoir visiter le logement.

Nous ne prenons pas de dossier de candidature sans visite.

Bilan énergétique

Diagnostics énergetiques
A propos de ce bien Caractéristiques de ce bien
  • Surface 51,39 m²
  • 1 chambre(s)
  • 1 salle(s) de bain
  • cuisine américaine (équipée)
  • Chauffage individuel : radiateur (gaz)
  • 2ème étage
  • cave
  • balcon

Info copro

Copropriété
  • Copropriété Oui

Financier

Informations financières
Loyer CC* / mois 717,55 €
Honoraires TTC charge locataire 667 €
Dont état des lieux 154 €
Dépôt de garantie TTC 657,55 €
Charges locatives (Previsionnelles mensuelles avec regularisation annuelle) 60 €

Autour du bien

Découvrez le quartier
IBT GESTION Agence

* CC : Charges comprises