Page suivante
Page précédente
Chambéry (73000)

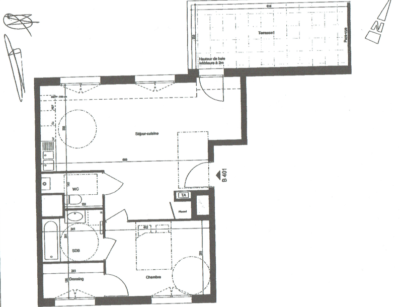
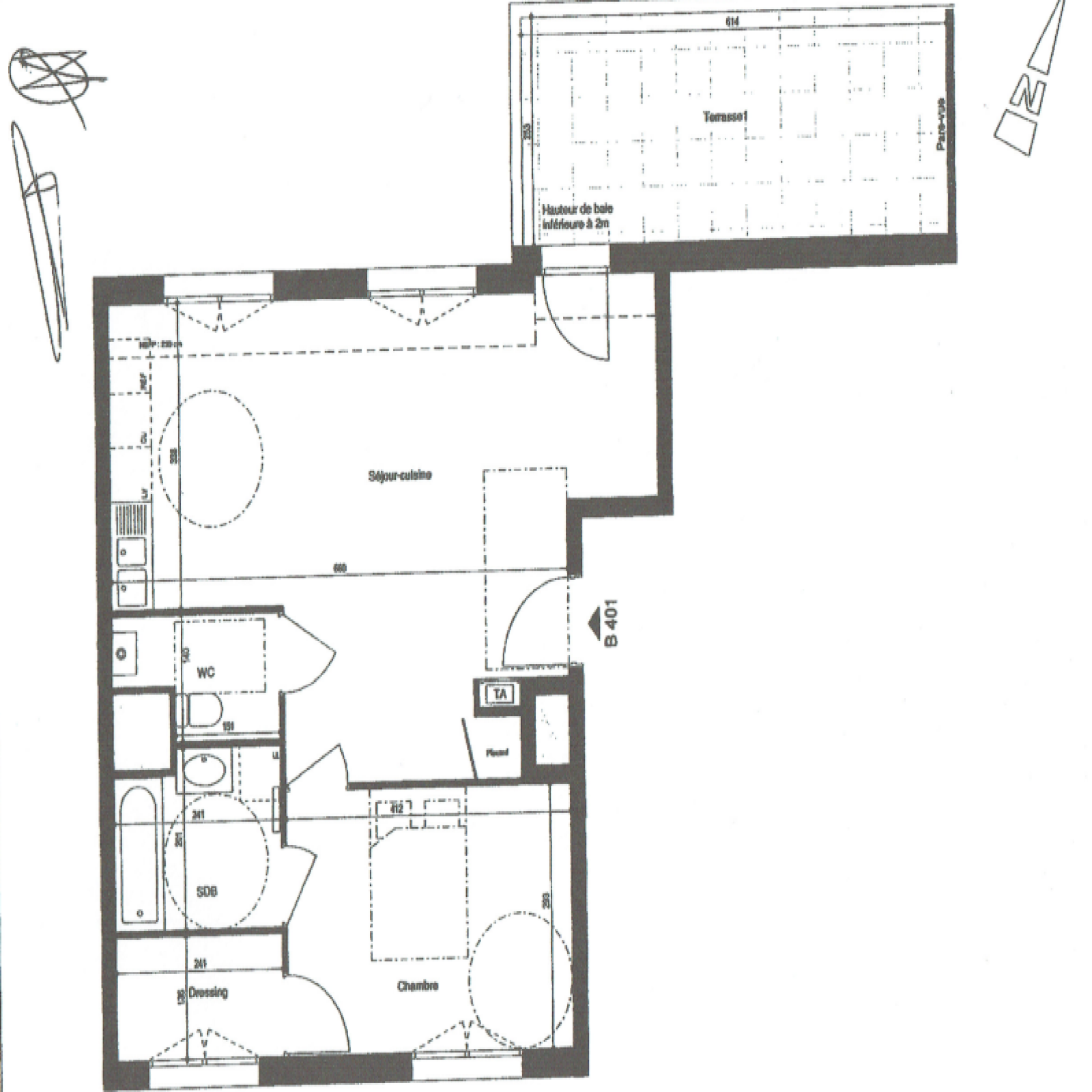
Appartement 2 pièce(s) 1 chambre(s) 55.48 m²

1
1
738,59 € CC*
Réf berthelot

Rue Faubourg Montmelian, appartement T2 de 55.48m², en attique au 4ème et dernier étage. L'appartement est composé d'une entrée, avec un grand séjour, une cuisine ouverte équipée, donnat sur une terrasse de 15.54m², une chambre avec dressing, une salle de bain et des toilettes. Il dispose d'un parking double en sous-sol. Plafond Pinel.

Honoraires: 559€ + 167€ Frais d'état des lieux


La prise de rendez-vous s'effectue en ligne, merci de vous rediriger sur notre site IBT GESTION et de cliquer sur la rubrique "prendre rendez-vous", celle-ci se situe au niveau du descriptif de l'annonce . Il vous suffira de réserver votre créneau de visite ou de remplir le formulaire afin d'être placé sur la liste d'attente en attendant de recevoir une invitation.

Les locataires et les garants physiques couvrants 3X le montant du loyer sont obligatoires pour pouvoir visiter le logement.

Nous ne prenons pas de dossier de candidature sans visite.

Bilan énergétique

Diagnostics énergetiques
A propos de ce bien Caractéristiques de ce bien
  • Surface 55,48 m²
  • 1 chambre(s)
  • 1 salle(s) de bain
  • cuisine américaine (équipée)
  • Chauffage individuel : autre (gaz)
  • 4ème étage

Info copro

Copropriété
  • Copropriété Oui

Financier

Informations financières
Loyer CC* / mois 738,59 €
Honoraires TTC charge locataire 726 €
Dont état des lieux 167 €
Dépôt de garantie TTC 688,59 €
Charges locatives (Previsionnelles mensuelles avec regularisation annuelle) 50 €

Autour du bien

Découvrez le quartier
IBT GESTION Agence

* CC : Charges comprises