Page suivante
Page précédente
Saint-Priest (69800)

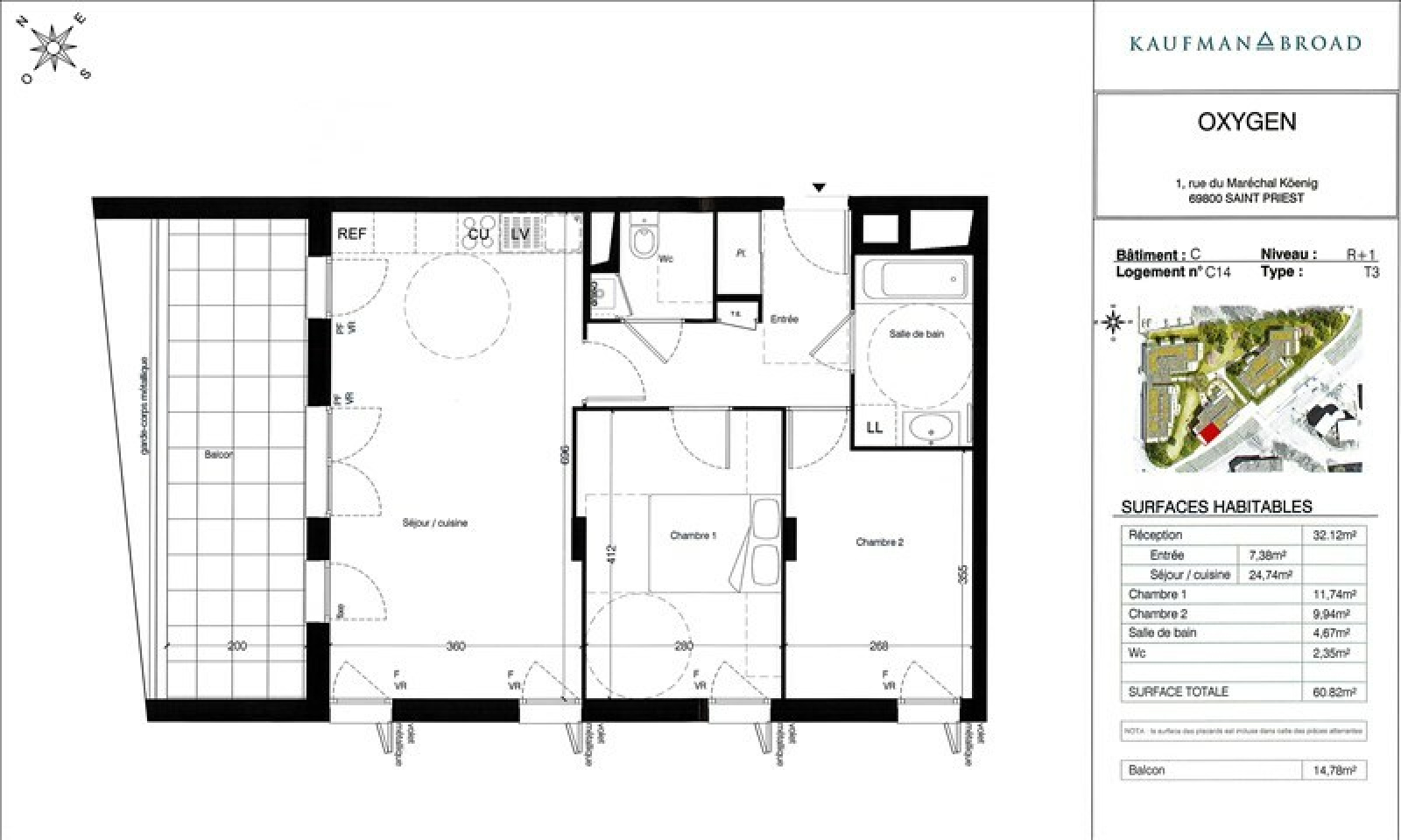
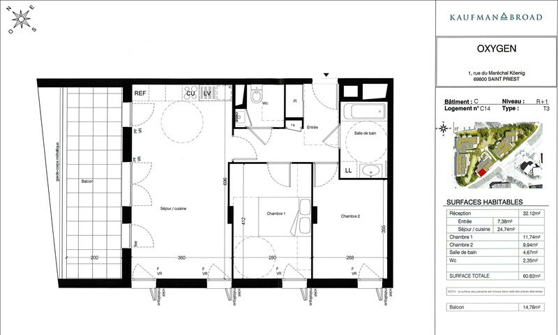
Appartement 3 pièce(s) 2 chambre(s) 62.27 m²

1
Balcon
Ascenseur
784,17 € CC*
Réf KOENIG1

Rue du Maréchal Koenig - Appartement T3 de 62.27m² au 1er étage comprenant une entrée, un séjour avec une cuisine vide, deux chambres, une salle de bains et des Wc séparés. L'appartement dispose d'un balcon de 15,05m² et d'un emplacement de parking en sous-sol. Dispositif PINEL

Honoraires: 627.68€ + 188.05€ Frais d'état des lieux

La prise de rendez-vous s'effectue en ligne, merci de vous rediriger sur notre site IBT GESTION et de cliquer sur la rubrique "prendre rendez-vous", celle-ci se situe au niveau du descriptif de l'annonce . Il vous suffira de réserver votre créneau de visite ou de remplir le formulaire afin d'être placé sur la liste d'attente en attendant de recevoir une invitation.

Les locataires et les garants physiques couvrants 3X le montant du loyer sont obligatoires pour pouvoir visiter le logement.

Nous ne prenons pas de dossier de candidature sans visite.

Bilan énergétique

Diagnostics énergetiques
A propos de ce bien Caractéristiques de ce bien
  • Surface 62,27 m²
  • 2 chambre(s)
  • 1 salle(s) de bain
  • Chauffage individuel : radiateur (gaz)
  • 1er étage
  • ascenseur
  • balcon
  • interphone

Financier

Informations financières
Loyer CC* / mois 784,17 €
Honoraires TTC charge locataire 815,73 €
Dont état des lieux 188,05 €
Dépôt de garantie TTC 725,17 €
Charges locatives (Previsionnelles mensuelles avec regularisation annuelle) 59 €

Autour du bien

Découvrez le quartier
IBT GESTION Agence

* CC : Charges comprises