Page suivante
Page précédente
Meyzieu (69330)

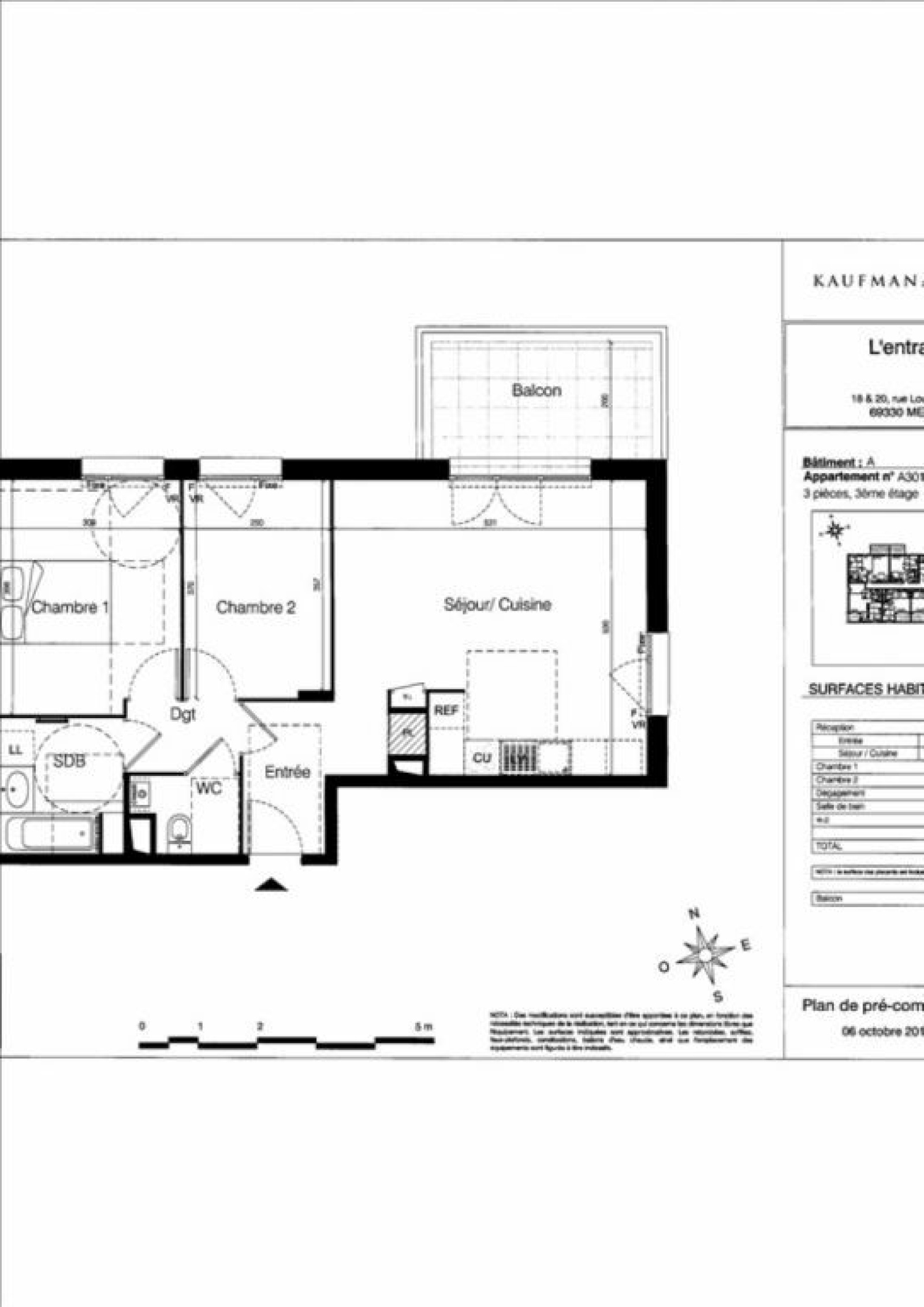
Appartement 3 pièce(s) 2 chambre(s) 60.34 m²

1
Balcon
Ascenseur
769,82 € CC*
Réf 18SAULNIER

Rue Louis Saulnier , dans le programme récent ''L'ENTRACTE'', beau T3 de 60,34m² comprenant une entrée avec placard, un séjour avec une cuisine ouverte équipée donnant accès à un balcon, un coin nuit avec 2 chambres, une salle de bains, des toilettes.L'appartement dispose d'un garage. Plafond Pinel. (photos à venir)

Honoraires 603€+ 180€ Frais d'état des lieux

La prise de rendez-vous s'effectue en ligne, merci de vous rediriger sur notre site IBT GESTION et de cliquer sur la rubrique "prendre rendez-vous", celle-ci se situe au niveau du descriptif de l'annonce. Il vous suffira de réserver votre créneau de visite ou de remplir le formulaire afin d'être placé sur la liste d'attente en attendant de recevoir une invitation. Les garants physiques couvrants 3X le montant du loyer sont obligatoires pour pouvoir visiter le logement.

Nous ne prenons pas de dossier de candidature sans visite.

Vous pouvez également nous contacter sur notre standard téléphnique pour plus d'informations.

Bilan énergétique

Diagnostics énergetiques
A propos de ce bien Caractéristiques de ce bien
  • Surface 60,34 m²
  • 2 chambre(s)
  • 1 salle(s) de bain
  • Chauffage individuel : radiateur (gaz)
  • 1 garage(s)
  • 5 niveau(x)
  • 3ème étage
  • ascenseur
  • balcon
  • interphone
  • accès handicapé

Financier

Informations financières
Loyer CC* / mois 769,82 €
Honoraires TTC charge locataire 638 €
Dont état des lieux Non renseigné
Dépôt de garantie TTC 709,82 €
Charges locatives (provision donnant lieu à régularisation annuelle) 60 €

Autour du bien

Découvrez le quartier
IBT GESTION Agence

* CC : Charges comprises