Page suivante
Page précédente
Lyon (69007)

Appartement 1 pièce(s) 34 m²

1
Ascenseur
1
682 € CC*
Réf 114TCH

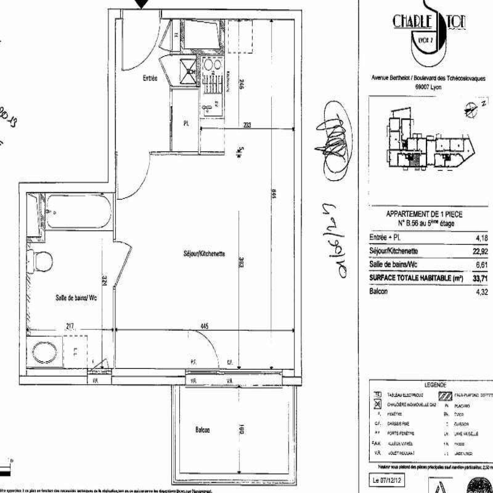
Angle Avenue Berthelot et Boulevard des Tchécoslovaques, programme récent ''CHARLESTON'' de bon standing, beau studio meublé de 33.71m² au 5ème étage comprenant une entrée avec placard, une pièce de vie avec coin kitchenette et une salle de bains avec des toilettes. L'appartement dispose d'un balcon. Un garage en sous-sol .

Honoraires 337€ + 101€ Frais d'état des lieux / Zone soumise à l'encadrement des loyers: Loyer de référence médian: 509€HC / Loyé majoré: 610€HC

Honoraires 183.75€ + 55.05€ Frais d'état des lieux / Zone soumise à l'encadrement des loyers / Loyer de référence médian : €HC / Loyer majoré : €HC / Complément de loyer : €.

La prise de rendez-vous s'effectue en ligne, merci de vous rediriger sur notre site IBT GESTION et de cliquer sur la rubrique "prendre rendez-vous", celle-ci se situe au niveau du descriptif de l'annonce . Il vous suffira de réserver votre créneau de visite ou de remplir le formulaire afin d'être placé sur la liste d'attente en attendant de recevoir une invitation.

Les locataires et les garants physiques couvrants 3X le montant du loyer sont obligatoires pour pouvoir visiter le logement.

Nous ne prenons pas de dossier de candidature sans visite.

Bilan énergétique

Diagnostics énergetiques
A propos de ce bien Caractéristiques de ce bien
  • Surface 34 m²
  • 1 salle(s) de bain
  • construit en 2014
  • kitchenette
  • Chauffage individuel : radiateur (gaz)
  • 1 garage(s)
  • 5ème étage
  • ascenseur
  • interphone

Financier

Informations financières
Loyer CC* / mois 682 €
Honoraires TTC charge locataire 438 €
Dont état des lieux 101 €
Dépôt de garantie TTC 1 300 €
Charges locatives (Previsionnelles mensuelles avec regularisation annuelle) 32 €

Autour du bien

Découvrez le quartier
IBT GESTION Agence

* CC : Charges comprises