Page suivante
Page précédente
Lyon (69009)

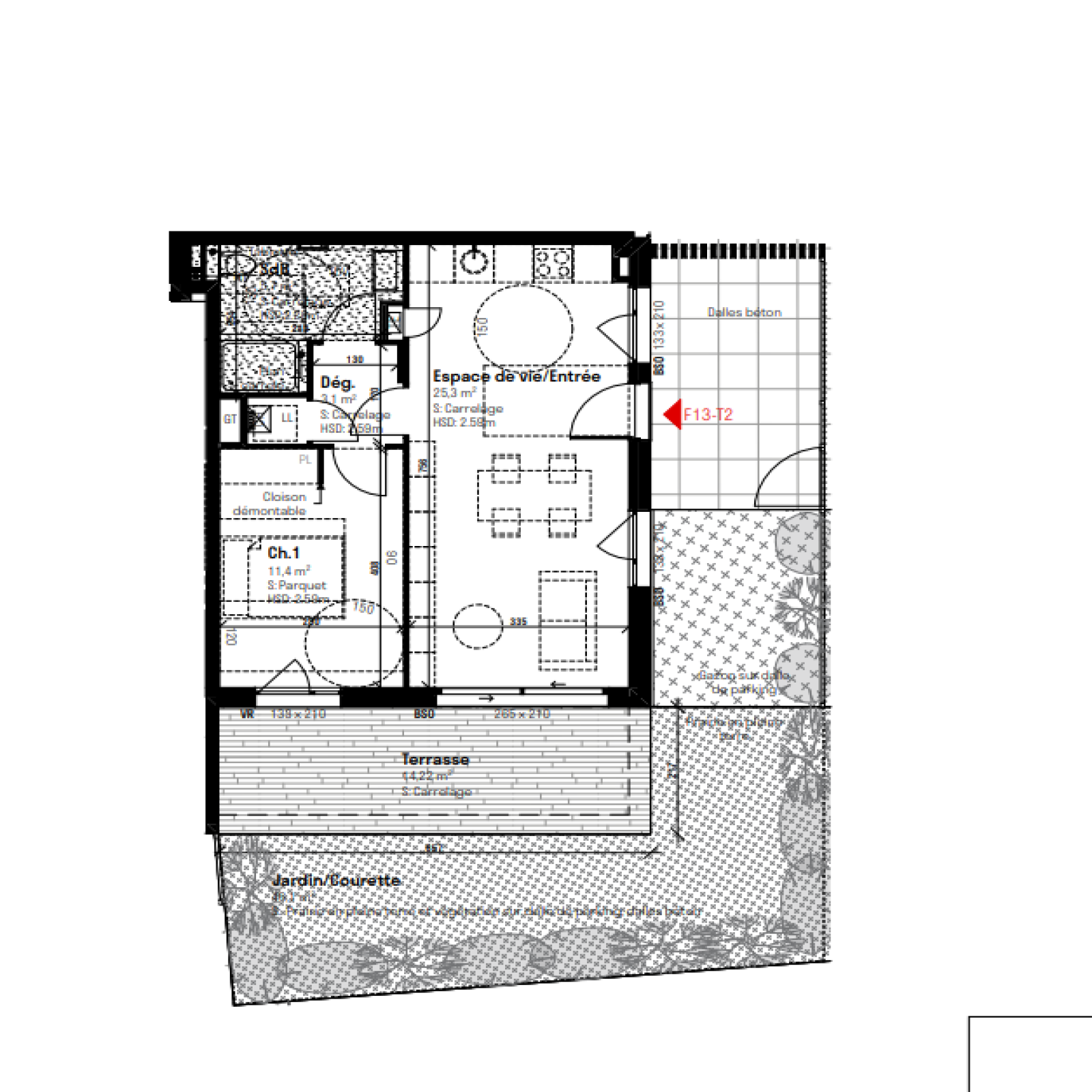
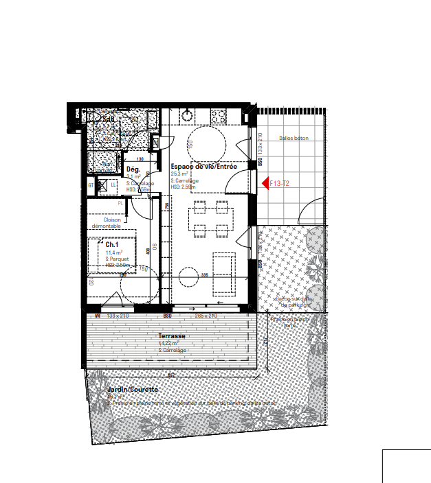
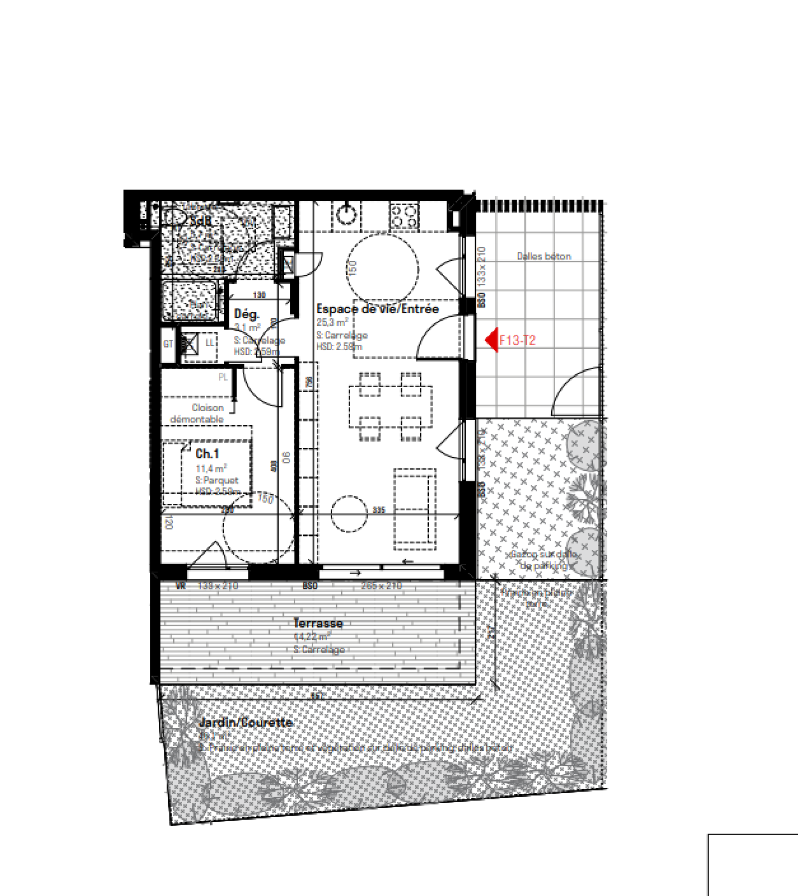
Appartement 2 pièce(s) 1 chambre(s) 45.5 m²

1
1
775,10 € CC*
Réf balme22

Située Montée des Balmes, dans un programme récent "GOLDEN STONES", appartement de type T2 de 45.5m², au 2ème étage. Il se compose d'un séjour avec cuisine ouverte équipée, une chambre, une salle de douche et un wc séparé. Il dispose aussi d'un toit terrasse. Parking en sous-sol inclu. Plafond Pinel. Ce bien est disponible le 25/03/2026.

Honoraires: 458€ + Frais d'état des lieux: 137€.

Zone soumise à l'encadrement des loyers: Loyer de référence médian : 664€HC / Loyer majoré : 796€HC

La prise de rendez-vous s'effectue en ligne, merci de vous rediriger sur notre site IBT GESTION et de cliquer sur la rubrique "prendre rendez-vous", celle-ci se situe au niveau du descriptif de l'annonce . Il vous suffira de réserver votre créneau de visite ou de remplir le formulaire afin d'être placé sur la liste d'attente en attendant de recevoir une invitation. Vous pouvez également envoyer un mail à Madame Bonfort vias cette adresse mail: e.bonfort@ibtgestion.com

Les locataires et les garants physiques couvrants 3X le montant du loyer sont obligatoires pour pouvoir visiter le logement.

Nous ne prenons pas de dossier de candidature sans visite.

Bilan énergétique

Diagnostics énergetiques
A propos de ce bien Caractéristiques de ce bien
  • Surface 45,50 m²
  • 1 chambre(s)
  • 1 salle(s) d'eau
  • cuisine américaine (équipée)
  • Chauffage individuel : autre (electrique)
  • 2ème étage
  • terrasse

Info copro

Copropriété
  • Copropriété Oui

Financier

Informations financières
Loyer CC* / mois 775,10 €
Honoraires TTC charge locataire 591 €
Dont état des lieux 136 €
Dépôt de garantie TTC 725 €
Charges locatives (Previsionnelles mensuelles avec regularisation annuelle) 50 €

Autour du bien

Découvrez le quartier
IBT GESTION Agence

* CC : Charges comprises